Skip To Content

1047 Falmouth Rd , #5

Barnstable, MA 02601
  • $1,900
  • STATUS: Active
  • MLS #: 73443077
UPDATED: 72 min ago
$1,900
  • 0
    BEDS
  • 0.83
    ACRES
  • 0
    BATHS
  • 0
    1/2 BATHS
Neighborhood:
Type:
Commercial-Lease
Built:
1969
County:
Area:

School Ratings & Info

Listing courtesy of James Andrea of Wood Real Estate, Inc..

Description

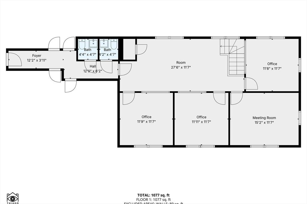
Multiple Units Available - Please review attached floor plan.Unit 1 - 500 Sq. Ft. Office space w/ divide wall for reception / admin / conference and a private office. Bathrooms located in common area. Unit 5 - 1000 Sq. Ft. of 4 offices and a common conference room / waiting area with public front entrance and private rear entrance. Unit 6 - 3000 Sq. Ft. Office and Showroom area. From private offices, to showroom areas, to a private gym. Endless possibilities in this expansive unit. Over engineered building utilities allows for a lot of different options.



The property listing data and information set forth herein were provided to MLS Property Information Network, Inc. from third party sources, including sellers, lessors and public records, and were compiled by MLS Property Information Network, Inc. The property listing data and information are for the personal, non commercial use of consumers having a good faith interest in purchasing or leasing listed properties of the type displayed to them and may not be used for any purpose other than to identify prospective properties which such consumers may have a good faith interest in purchasing or leasing. MLS Property Information Network, Inc. and its subscribers disclaim any and all representations and warranties as to the accuracy of the property listing data and information set forth herein. Data last updated 2025-11-11T07:08:06.263.
www.teamtringali.com/homes/168862867
Print Image

1047 Falmouth Rd , #5 Barnstable, MA 02601

  • Price: $1,900
  • Status: Active
  • On Site: Days
  • Updated: 72 min ago
  • MLS #: 73443077
0
Beds
0
Baths
0
½ Baths
0.83
Acres
1969
Built
Neighborhood:
Hyannis
County:
Barnstable
Area:
Hyannis
Property Description
Multiple Units Available - Please review attached floor plan.Unit 1 - 500 Sq. Ft. Office space w/ divide wall for reception / admin / conference and a private office. Bathrooms located in common area. Unit 5 - 1000 Sq. Ft. of 4 offices and a common conference room / waiting area with public front entrance and private rear entrance. Unit 6 - 3000 Sq. Ft. Office and Showroom area. From private offices, to showroom areas, to a private gym. Endless possibilities in this expansive unit. Over engineered building utilities allows for a lot of different options.
Exterior Features

Parking Total 35 Roof Shingle Waterfront YN No

Property Features

Association YN No Business Type Professional/Office Existing Lease Type Net Home Warranty YN No Senior Community YN No Tax Annual Amount 12226 Tax Year 2025 Utilities Public WaterPrivate SewerNatural Gas Available440 VoltsSee Remarks Zoning R

Listing information © 2025 MLS Property Information Network. All information is deemed reliable but should be independently verified.
Listing provided courtesy of James Andrea of Wood Real Estate, Inc.: 508-807-8700.


The property listing data and information set forth herein were provided to MLS Property Information Network, Inc. from third party sources, including sellers, lessors and public records, and were compiled by MLS Property Information Network, Inc. The property listing data and information are for the personal, non commercial use of consumers having a good faith interest in purchasing or leasing listed properties of the type displayed to them and may not be used for any purpose other than to identify prospective properties which such consumers may have a good faith interest in purchasing or leasing. MLS Property Information Network, Inc. and its subscribers disclaim any and all representations and warranties as to the accuracy of the property listing data and information set forth herein. Data last updated 2025-11-11T07:08:06.263.
 
https://bt-photos.global.ssl.fastly.net/mlspin/orig_boomver_1_73443077_2.jpg
Logo
Team Tringali | Keller Williams Gateway Realty
20 Trafalgar Square, Suite 101
Nashua NH, 03063
Listing courtesy of James Andrea of Wood Real Estate, Inc..